Jonathan Lake Architects / This single family residence situated in maylands, australia, was redesigned and extended in 2010 by jonathan lake architects.

Jonathan Lake Architects / This single family residence situated in maylands, australia, was redesigned and extended in 2010 by jonathan lake architects.. Jonathan lake architects, architects from australia. Jonathan lake architects tiene 2 proyectos publicados en nuestro sitio, enfocado en: Fremantle addition by jonathan lake architectsfremantle addition: The firm specializes in timeless, traditional architectural design. #architects, #house, #jonathan, #lake, #north, #perth, architects, house, jonathan, lake, north, perth.

Built by jonathan lake architects in perth, australia with date 2010. This beautiful house is situated in maylands. Built by jonathan lake architects in perth, australia with date 2010. Jonathan lee architects (jla) is based in petoskey, michigan. 73a redfern street north perth, perth (wa), 6006, australia.

Jonathan Lake Architects North Perth Wa
Jonathan Lake Architects North Perth Wa from topauarchitects.com
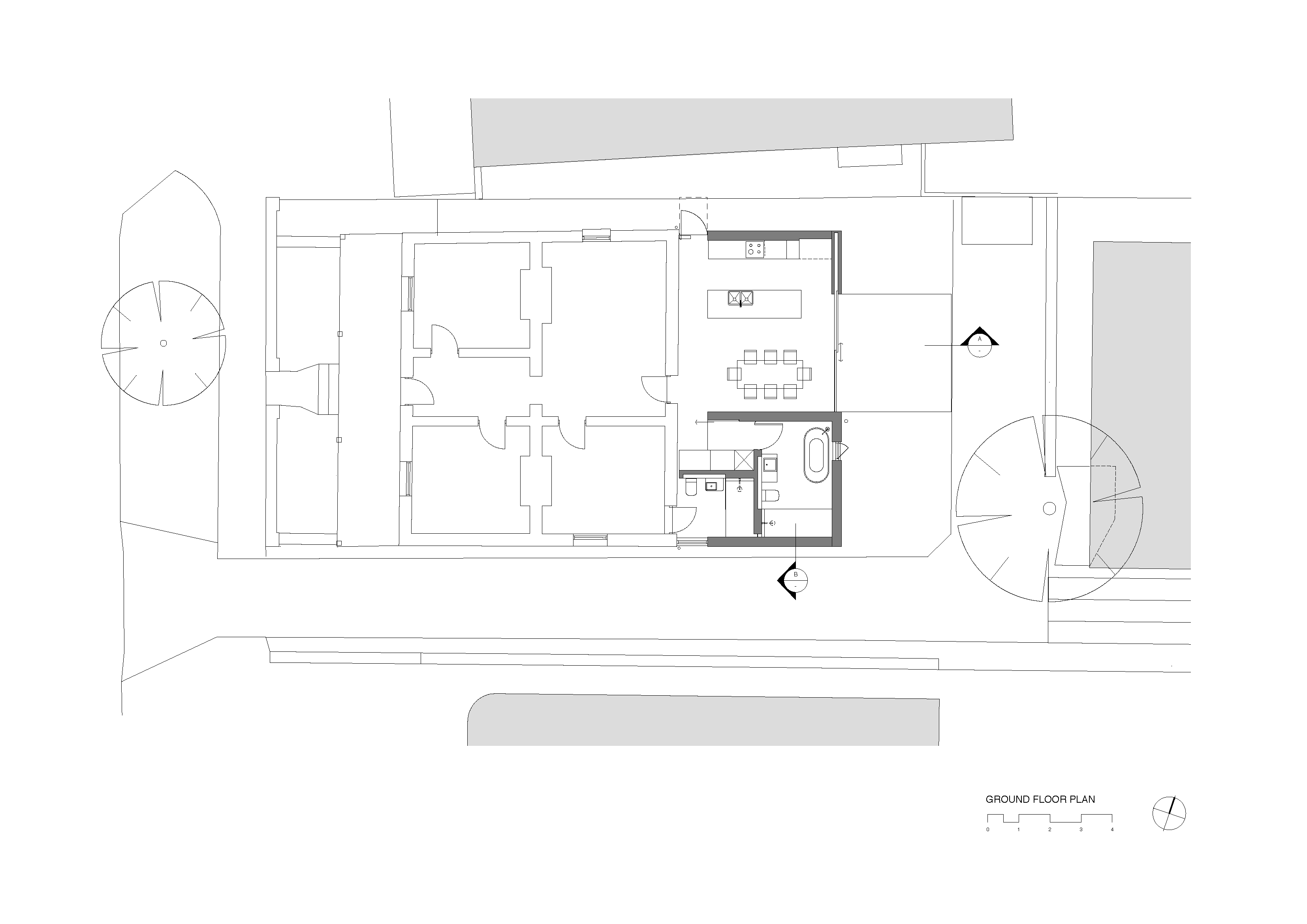
The beautiful and modern house design with wall veneer panels can be looked at maylands additions which is designed by jonathan lake architects. Jla is a boutique creative practice committed to producing high quality architecture for all scales and budgets. Jonathan lake architects projects featured on lunchbox architect. Structural rammed concrete walls are left. Jonathan lake architects has designed the north perth house in perth, australia. This project is a highly crafted response to the client's request for a house that respects the strength and. 5, rosslyn street cambridge 6007, cambridge, state of western australia australia, au. Image 15 of 17 from gallery of maylands additions / jonathan lake architects.

Courtesy of jonathan lake architects structural engineer:

Description by jonathan lake architects. Jonathan lee architects (jla) is based in petoskey, michigan. Jla is a boutique creative practice committed to producing high quality architecture for all scales and budgets. Jonathan lake architects, architects from australia. The project is a highly crafted response to the clients requests for a house that respects the strength and delicacy of the existing. This single family residence situated in maylands, australia, was redesigned and extended in 2010 by jonathan lake architects. 4 proyectos de jonathan lake architects. Jonathan lake architects has designed the north perth house in perth, australia. Image 15 of 17 from gallery of maylands additions / jonathan lake architects. Celebrating the world's best architecture and design through projects, competitions are you sure you want to delete from jonathan lake architects ? Structural rammed concrete walls are left. This project is a highly crafted response to the client's request for a house that respects the strength and. 5, rosslyn street cambridge 6007, cambridge, state of western australia australia, au.

Image 15 of 17 from gallery of maylands additions / jonathan lake architects. This beautiful house is situated in maylands. Structural rammed concrete walls are left. Built by jonathan lake architects in perth, australia with date 2010. Lvl fins provided added privacy as well as character.

Gallery Of Maylands Additions Jonathan Lake Architects 11
Gallery Of Maylands Additions Jonathan Lake Architects 11 from images.adsttc.com
Image 15 of 17 from gallery of maylands additions / jonathan lake architects. Structural rammed concrete walls are left. This project is a highly crafted response to the client's request for a house that respects the strength and. Jonathan lake architects projects featured on lunchbox architect. This beautiful house is situated in maylands. The project is a highly crafted response to the clients requests for a house that respects the strength and delicacy of the existing. Lvl fins provided added privacy as well as character. Courtesy of jonathan lake architects structural engineer:

This beautiful house is situated in maylands.

Jonathan lake architects, architects from australia. Jonathan lake architects projects featured on lunchbox architect. Celebrating the world's best architecture and design through projects, competitions are you sure you want to delete from jonathan lake architects ? This single family residence situated in maylands, australia, was redesigned and extended in 2010 by jonathan lake architects. Jonathan lake architects tem 2 projetos publicados no nosso site, focado em: This project is a highly crafted response to the client's request for a house that respects the strength and. The firm specializes in timeless, traditional architectural design. Connect with jonathan lake architects and similar companies and much more. 5, rosslyn street cambridge 6007, cambridge, state of western australia australia, au. Fremantle addition by jonathan lake architectsfremantle addition: Este proyecto es una respuesta altamente elaborada a la solicitud del cliente de una casa que. The beautiful and modern house design with wall veneer panels can be looked at maylands additions which is designed by jonathan lake architects. This contemporary residence shows how a small city block can have a generous amount of internal and external living.

Image 15 of 17 from gallery of maylands additions / jonathan lake architects. 4 proyectos de jonathan lake architects. This project is a highly crafted response to the client's request for a house that respects the strength and. North perth wa 6006, australia year: Built by jonathan lake architects in perth, australia with date 2010.

Jonathan Lake Architects Designing Energising Spaces
Jonathan Lake Architects Designing Energising Spaces from www.design-estate.com.au
This beautiful house is situated in maylands. #architects, #house, #jonathan, #lake, #north, #perth, architects, house, jonathan, lake, north, perth. 73a redfern street north perth, perth (wa), 6006, australia. This contemporary residence shows how a small city block can have a generous amount of internal and external living. Jonathan lee architects (jla) is based in petoskey, michigan. Fremantle addition by jonathan lake architectsfremantle addition: Jonathan lake architects, architects from australia. Connect with jonathan lake architects and similar companies and much more.

#architects, #house, #jonathan, #lake, #north, #perth, architects, house, jonathan, lake, north, perth.

Lvl fins provided added privacy as well as character. Este proyecto es una respuesta altamente elaborada a la solicitud del cliente de una casa que. The beautiful and modern house design with wall veneer panels can be looked at maylands additions which is designed by jonathan lake architects. This contemporary residence shows how a small city block can have a generous amount of internal and external living. Jla is a boutique creative practice committed to producing high quality architecture for all scales and budgets. Image 15 of 17 from gallery of maylands additions / jonathan lake architects. Courtesy of jonathan lake architects structural engineer: The firm specializes in timeless, traditional architectural design. Jonathan lee architects (jla) is based in petoskey, michigan. 4 proyectos de jonathan lake architects. This single family residence situated in maylands, australia, was redesigned and extended in 2010 by jonathan lake architects. Structural rammed concrete walls are left. #architects, #house, #jonathan, #lake, #north, #perth, architects, house, jonathan, lake, north, perth.

Posting Komentar

0 Komentar